- Accueil
- Location
- Landes
- Saugnacq et muret
- Maison T4 + garage
Référence : T4VIE.B-524
Partager
Maison T4 + garage
Description de l'offre
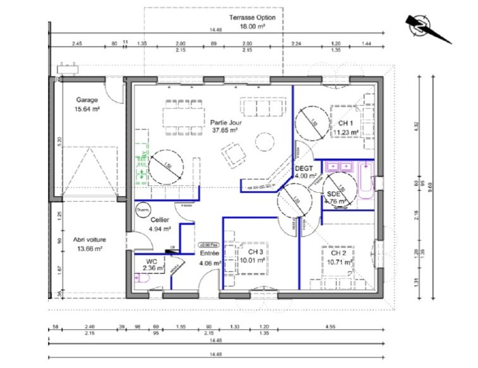
SAUGNAC ET MURET - A louer à partir du 04/02/2026. Au calme en lisière de forêt, sur une parcelle d'environ 790 m², maison de 2021 de plain pied, mitoyenne par le garage et d'une surface habitable d'environ 90 m² comprenant : une entrée desservant un WC, un séjour-salon avec coin cuisine US aménage, un cellier et le cion nuit composé de 3 chambres et une salle d'eau. Un abri voiture attenant à la maison, un garage avec porte motorisée, une terrasse béton exposée SUD-OUEST. Jardin en partie clos. Chauffage par climatisation réversible (entretien annuel compris dans les charges), asainissement individuel avec micro-station (entretien annuel + vidange ts les 4 ans mensualisés dans les changes), volets roulants électriques. Garantie Loyers Impayés souscrite par le bailleur. Pas de possibilité de Garant. Vous pouvez envoyer votre dossier par mail à : sandrine.marchal@alterego-immo.fr Liste des pièces à fournir : https://www.dropbox.com/scl/fo/mz43h6aqatcbbw0barp4x/ANmPgGLLHWYAiqvGK_ZoACs?rlkey=x2r9eg9j6432pbrdhimz4qpqq&dl=0 (Liens accessibles sur notre site internet)
Descriptif du bien
- Code postal : 40410
- Surface habitable (m²) : 90 m²
- surface terrain : 790 m²
- Nombre de chambre(s) : 3
- Nombre de pièces : 4
- Meublé : NON
- Nb de salle d'eau : 1
- Cuisine : AMERICAINE
- Type de cuisine : SEMI-EQUIPEE
- Mode de chauffage : Climatisation
- Type de chauffage : Air pulsé
- Format de chauffage : Individuel
- Terrasse : OUI
- Murs mitoyens : 1
- Nombre de garage : 1
- Exposition : SUD-OUEST
- Année de construction : 2021
- Loyer CC* / mois : 1 023 €
- Honoraires TTC charge locataire : 745,20 €
- Dont état des lieux : 270 €
- Dépôt de garantie TTC : 993 €
- Charges locatives (Previsionnelles mensuelles les avec regularisation annuelle) : 30 €
Montant estimé des dépenses annuelles d'énergie de ce logement pour un usage standard est compris entre 322 € et 436 € . 2021 étant l'année de référence des prix de l'énergie utilisés pour établir cette estimation.
La ville de Saugnacq-et-Muret (40410)
Nous Contacter
Les informations recueillies sur ce formulaire sont enregistrées dans un fichier informatisé par La Boite Immo agissant comme Sous-traitant du traitement pour la gestion de la clientèle/prospects de l'Agence / du Réseau qui reste Responsable du Traitement de vos Données personnelles.
La base légale du traitement repose sur l’intérêt légitime de l'Agence / du Réseau.
Elles sont conservées jusqu'à demande de suppression et sont destinées à l'Agence / au Réseau.
Conformément à la loi « informatique et libertés », vous pouvez exercer votre droit d'accès aux données vous concernant et les faire rectifier en contactant l'Agence / le Réseau.
Si vous estimez, après avoir contacté l'Agence / le Réseau, que vos droits « Informatique et Libertés » ne sont pas respectés, vous pouvez adresser une réclamation à la CNIL.
Nous vous informons de l’existence de la liste d'opposition au démarchage téléphonique « Bloctel », sur laquelle vous pouvez vous inscrire ici : https://www.bloctel.gouv.fr
Dans le cadre de la protection des Données personnelles, nous vous invitons à ne pas inscrire de Données sensibles dans le champ de saisie libre
Ce site est protégé par reCAPTCHA, les Politiques de Confidentialité et les Conditions d'Utilisation de Google s'appliquent.
Partager l'offre
