- Accueil
- Location immobilier professionnel
- Gironde
- Belin beliet
- Bureau + espace soin dans Cabinet Médical
Référence : Local TDS 3
Partager
Bureau + espace soin dans Cabinet Médical
Description de l'offre
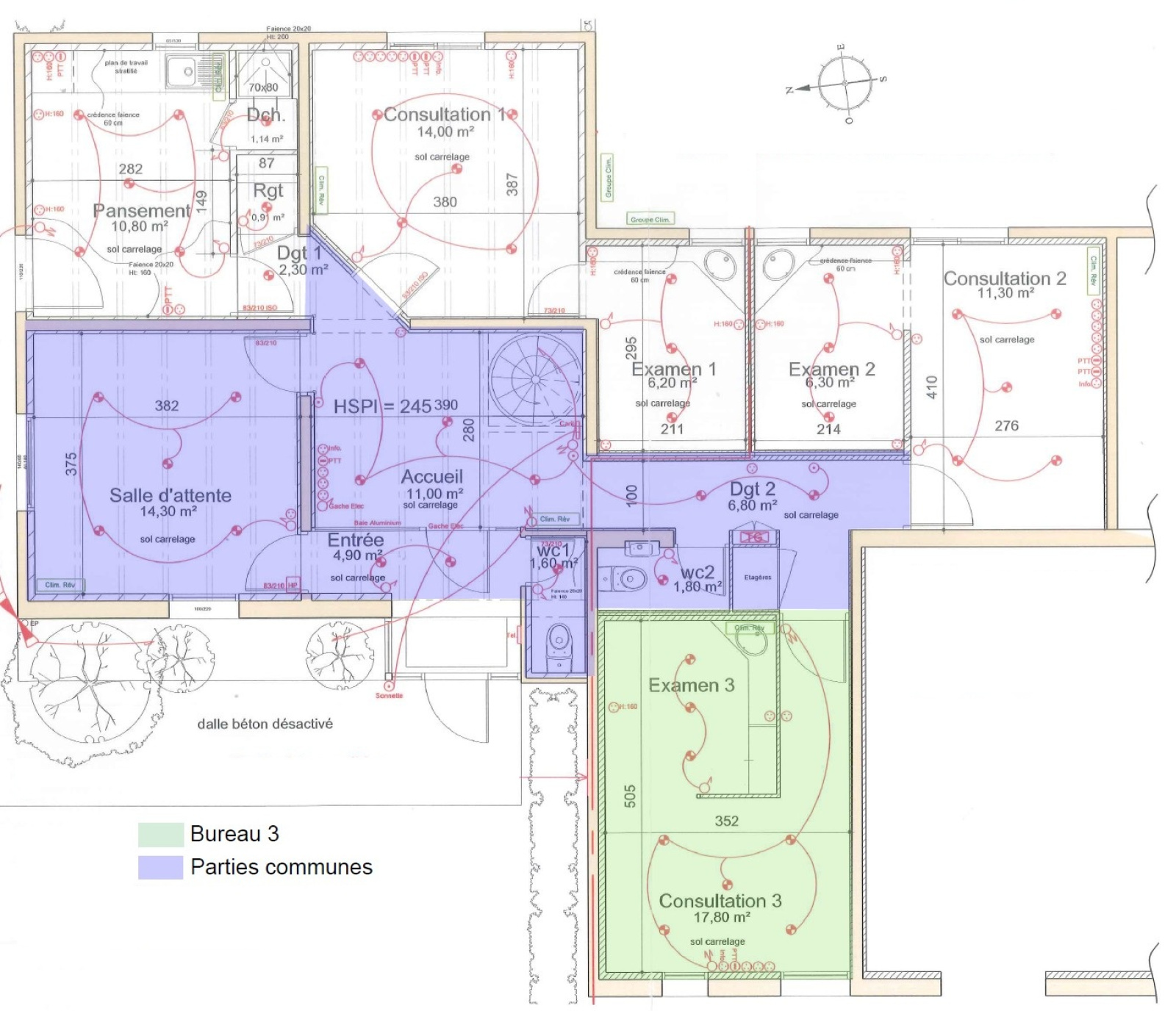
BELIN BELIET Centre - Accessible par l'autoroute A63, avec toutes les commodités, BELIN BELIET est une commune qui compte environ 6 000 habitants. Ancien cabinet médical composé de 3 bureaux climatisés avec point d'eau et parties communes comprennant un parking clients, un hall d'accueil avec salle d'attente, un WC clients et un WC privé. Le loyer comprent la location du bureau 3 (en teinte verte) et la jouissance des parties communes (en teinte Bleue). Des charges communes (Eau, électricité, ordures ménagères, entretien annuel de la climatisation) seront à régler en complément du loyer. Possibilité de louer également le Bureau 1 à compter du 15/11/2025 ou le Bureau 4. Pour tout renseignement complémentaire, n'hésitez pas à me contacter.
Descriptif du bien
- Type de transac : Local professionnel
- Code postal : 33830
- Surface habitable (m²) : 61,41 m²
- Nombre de pièces : 1
- Superficie (m²) : 61.41
- Mode de chauffage : Pompe à chaleur
- Type de chauffage : Air pulsé
- Format de chauffage : Collectif
- Année de construction : 2009
- Loyer : 500 € / mois
- Honoraires charge locataire : 720 €
- Dont état des lieux : Non renseigné
- Dépot de garantie : 500 €
- Bail : PROFESSIONEL
La ville de Belin-Béliet (33830)
Nous Contacter
Les informations recueillies sur ce formulaire sont enregistrées dans un fichier informatisé par La Boite Immo agissant comme Sous-traitant du traitement pour la gestion de la clientèle/prospects de l'Agence / du Réseau qui reste Responsable du Traitement de vos Données personnelles.
La base légale du traitement repose sur l'intérêt légitime de l'Agence / du Réseau.
Elles sont conservées jusqu'à demande de suppression et sont destinées à l'Agence / au Réseau.
Conformément à la loi « informatique et libertés », vous disposez des droits d’accès, de rectification, d’effacement, d’opposition, de limitation et de portabilité de vos données. Vous pouvez retirer votre consentement à tout moment en contactant directement l’Agence / Le Réseau.
Consultez le site https://cnil.fr/fr pour plus d’informations sur vos droits.
Si vous estimez, après avoir contacté l'Agence / le Réseau, que vos droits « Informatique et Libertés » ne sont pas respectés, vous pouvez adresser une réclamation à la CNIL.
Nous vous informons de l’existence de la liste d'opposition au démarchage téléphonique « Bloctel », sur laquelle vous pouvez vous inscrire ici : https://www.bloctel.gouv.fr
Dans le cadre de la protection des Données personnelles, nous vous invitons à ne pas inscrire de Données sensibles dans le champ de saisie libre.
Ce site est protégé par reCAPTCHA, les Politiques de Confidentialité et les Conditions d'Utilisation de Google s'appliquent.
Partager l'offre
